Book a Property Valuation

Daventry: 01327 311222
Long Buckby: 01327 844111
Woodford Halse: 01327 263333

SSTC

Pembroke Road, Clifton, Bristol, BS8

Guide Price £475,000

Flat

Overview

3 Bedroom Flat for sale in Pembroke Road, Clifton, Bristol, BS8

Key Features:

  • Conveniently situated
  • Well proportioned penthouse
  • 2 balconies
  • Stunning views from rear over Clifton College and it's playing fields
  • Covered parking for 1 car
  • Lift access

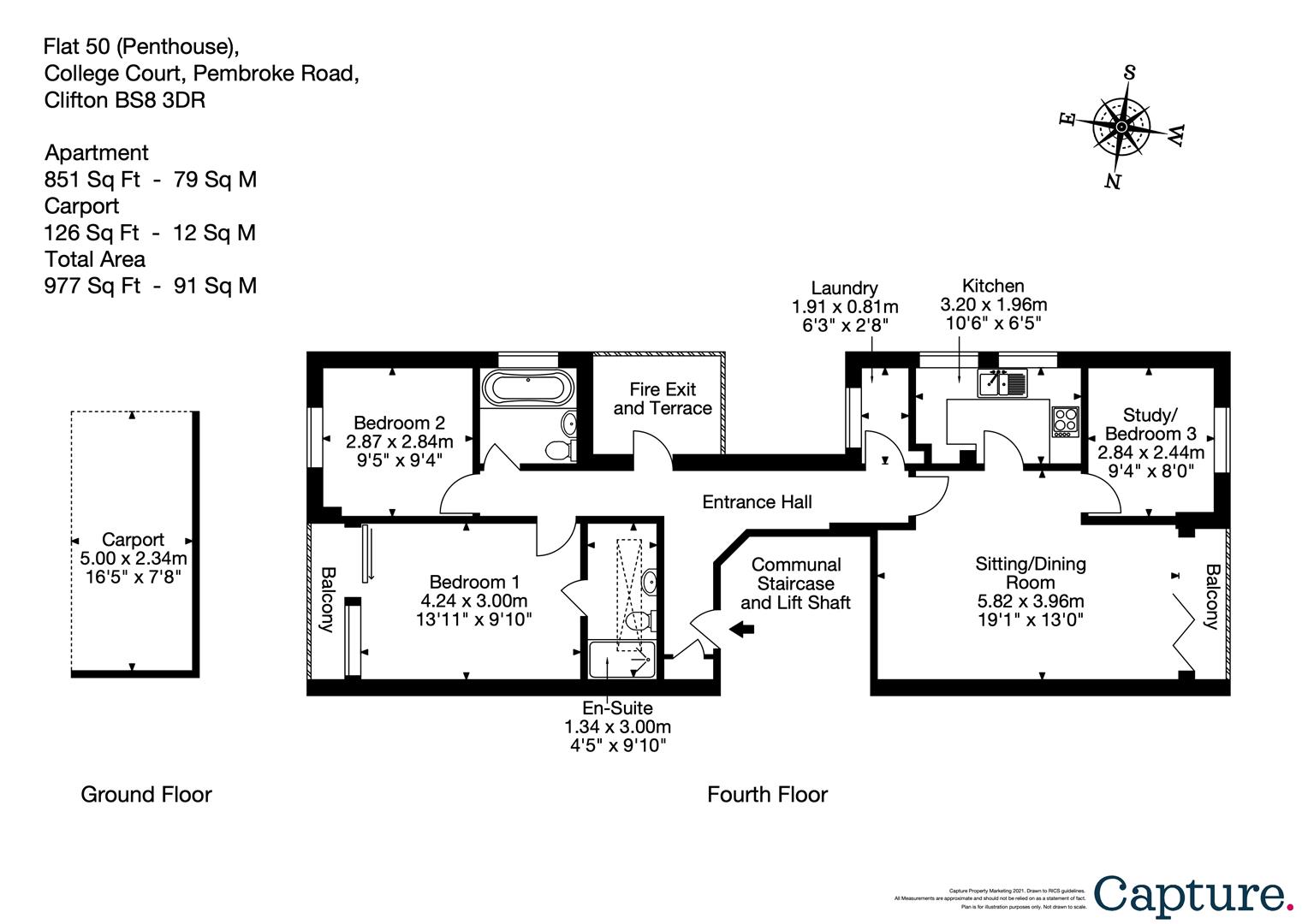
An exceptionally well proportioned (851sq. ft) penthouse apartment, enjoying magnificent unbroken views to the rear, overlooking neighbouring Clifton College School and its open playing fields. The apartment further benefits from lift access and has two private balconies. One of the two balconies is reached off the reception/dining room and enjoys a South Westerly facing aspect. A covered car parking space for one vehicle is accessed to the rear, off neighbouring Pembroke Vale. We understand that the apartment underwent considerable refurbishment in 2018, which included replacement of all double-glazed windows and bi fold doors to FENSA standard, electrical re-wiring and radiators, as well as a bespoke new kitchen and replacement of bathrooms. A new entry phone system and post boxes were also installed

Summary Of Accommodation - A lift shaft and stairwell provide access to the apartment. The front door opens into a light and airy entrance hall, which provides access to a fire escape. A large walk-in storage cupboard houses a hot water cylinder and fuse boxes. Ample storage.

The well-proportioned living/dining room enjoys magnificent far-reaching views over neighbouring Clifton College Close and its surrounding period town houses. A large bi-folding window to one end opens onto an enclosed balcony, ideal for external dining and general relaxation.

The modern kitchen has raised windows to one side, thereby providing good natural light, and benefits from a comprehensive range of base and wall units with solid granite work surfaces and upstands. Built in Neff double oven and grill with ceramic 4 ring electric hob and extractor. Integral fridge and dishwasher.

A walk-in utility room off the entrance hall provides plumbing for a washing machine and has good storage.

In all there are three bedrooms, the main enjoying access to an East facing balcony. An attractive ensuite bathroom includes a fully tiled glazed shower with wc and wash hand basin. Bedroom two again enjoys an open outlook over neighbouring townhouses. Bedroom three/study enjoys far reaching views over Clifton College playing fields and beyond.

The main bathroom comprises a double ended bath with w/c and wash hand basin and is attractively tiled throughout.

To the rear of the property is a communal garden open to all residents, as well as private covered parking for one car. Bicycle racks are also available to residents.

Other Information - Tenure - We understand to be remainder of a 999-year lease term from September 1979.
Ground rent - £110.00 per annum.
Management Company - We understand that there is an active management company in existence, with an annual management fee of £1,662.88.
Services - We understand that the property enjoys mains electricity, water and drainage
Local authority - Bristol City Council 0117-9222000
Rates - We understand to be band B - £1,603.04 in 2021/2022
Viewings - Strictly by appointment with Hydes of Bristol - 0117 9731516

Location - Situated in one of Clifton's most sought-after residential roads, the property benefits from being conveniently located within easy reach of the excellent amenities and high street shopping facilities on Whiteladies Road and Clifton Village. The famous Clifton Downs is only a stone's throw away offering wonderful walks and other recreational activities. Bristol City Centre is approximately 1.5 miles travelling distance with a regular bus service passing the front door.

Important Note - Hydes of Bristol and any joint agents give notice that (i) they have no authority to make or give representations or warranties in relation to the property. These particulars do not form part of any offer or contract and must not be relied upon as statements or representations of fact. (ii) Any areas, distances or measurements are approximate. The text, photographs and plans are for guidance only and are not necessarily comprehensive. It should not be assumed that the property has all the necessary planning, building regulations or other consents and Hydes of Bristol have not tested any services, equipment or facilities. Purchasers must satisfy themselves by inspection or otherwise. (iii) In accordance with the consumer protection from unfair trading regulations, please note that the working condition of these services, or kitchen appliances has not been checked by the Agents but at the time of taking particulars we were informed that all were in working order. Please also note that current government legislation demands that as selling agents for this property, Hydes of Bristol require written evidence of the origin/source of finance for funding for any prospective purchaser wishing to purchase this property. This confirmation shall be required prior to the vendor entering into any contract of sale and our instructions from the vendor are to this effect.

Read more

epc

Merchants Road, Clifton, Bristol

2 Bedroom Apartment

Merchants Road, Clifton, Bristol

Manilla Road, Bristol

2 Bedroom Apartment

Manilla Road, Bristol

Canynge Square, Clifton, Bristol, Bs8

2 Bedroom Apartment

Canynge Square, Clifton, Bristol, BS8

Grange Road, Clifton Village, Bristol

2 Bedroom Apartment

Grange Road, Clifton Village, Bristol

The Avenue, Clifton, Bristol

3 Bedroom Apartment

The Avenue, Clifton, Bristol

1 Percival Road, Bristol

2 Bedroom Apartment

1 Percival Road, Bristol


Update Cookies Preferences