Daventry: 01327 311222
Long Buckby: 01327 844111
Woodford Halse: 01327 263333
Guide Price £495,000
A stunning loft style penthouse with a gorgeous outlook over Clifton College's Newfield and beyond, situated in a superb, quiet, popular residential location within a short walk of Clifton Village, with the added benefits of allocated off street parking for one car, lift access to all floors and no onward chain.
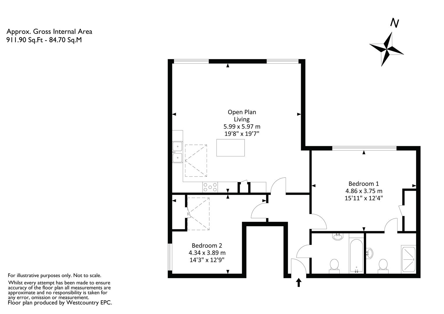
Percival Court, was for many years a Jewish boys boarding house at Clifton College, which was converted into a fine flat development in 2007 and consists of 18 apartments which were all fitted to a high specification. Flat 17 offers two well proportioned double bedrooms, a shower ensuite and a further bathroom. In a vast majority of the flat the ceilings have been opened up to the loft to provide a great feeling of space especially in the kitchen/living/dining room which offers plenty of room combined with the aforementioned views.
Externally there is a communal garden to the front of the property and the allocated parking space, which is situated to the rear of the property.
Other Information - Tenure - Leasehold - with 987 years remaining, with a share of the freehold.
Annual service charge - £2,400
Council tax band - Band 'C'
Local authority - Bristol City Council
Location - Percival Road is a residential road held in extremely high regard. The prized location coupled with the fact that the property is surrounded by an attractive mix of Victorian and Georgian architecture as well as being well placed for local amenities make it a widely admired address. The variety of shops, boutiques and restaurants in Clifton Village are within half a mile as well as the choice of further amenities on nearby Whiteladies Road. Indeed, Bristol's City Centre is within only one and a half miles allowing access to the national motorway network via the M32 and rail links to London Paddington from Temple Meads mainline station. The vast expanse of Cliftons Downs can be accessed within a quarter of a mile, as can the historic landmark of Isambard Kingdom Brunels world famous suspension bridge spanning the Avon Gorge. The area is particularly well served for schooling in both state and private sectors with Clifton College being situated within 500 yards and Clifton High School.
Summary Of Accommodation - A stunning loft style penthouse with a gorgeous outlook over Clifton College's Newfield and beyond, situated in a superb, quiet, popular residential location within a short walk of Clifton Village, with the added benefits of allocated off street parking for one car, lift access to all floors and no onward chain.
Percival Court, was for many years a Jewish boys boarding house at Clifton College, which was converted into a fine flat development in 2007 and consists of 18 apartments which were all fitted to a high specification. Flat 17 offers two well proportioned double bedrooms, a shower ensuite and a further bathroom. In a vast majority of the flat the ceilings have been opened up to the loft to provide a great feeling of space especially in the kitchen/living/dining room which offers plenty of room combined with the aforementioned views.
Externally there is a communal garden to the front of the property and the allocated parking space, which is situated to the rear of the property.
Important Note - Hydes Of Bristol and any joint agents give notice that (i) they have no authority to make or give representations or warranties in relation to the property. These particulars do not form part of any offer or contract and must not be relied upon as statements or representations of fact. (ii) Any areas, distances or measurements are approximate. The text, photographs and plans are for guidance only and are not necessarily comprehensive. It should not be assumed that the property has all the necessary planning, building regulations or other consents and Hydes Of Bristol have not tested any services, equipment or facilities. Purchasers must satisfy themselves by inspection or otherwise. (iii) In accordance with the consumer protection from unfair trading regulations, please note that the working condition of these services, or kitchen appliances has not been checked by the Agents but at the time of taking particulars we were informed that all were in working order. Please also note that current government legislation demands that as selling agents for this property, Hydes Of Bristol require written evidence of the origin/source of finance for funding for any prospective purchaser wishing to purchase this property. This confirmation shall be required prior to the vendor entering into any contract of sale and our instructions from the vendor are to this effect.
Royal York Crescent, Clifton, Bristol, BS8